THIẾT KẾ KIẾN TRÚC NHÀ TÂN CỔ ĐIỂN 3 TẦNG – ANH HOÀN
Mặt tiền ngôi nhà nổi bật với tông màu trắng chủ đạo, kết hợp hài hòa cùng hệ thống cửa nhôm kính màu đen hiện đại. Điểm nhấn của tầng 2 và tầng 3 là các đường phào chỉ chạy dọc tinh tế và ban công sắt nghệ thuật uốn lượn cầu kỳ. Cổng chính […]

Mặt tiền ngôi nhà nổi bật với tông màu trắng chủ đạo, kết hợp hài hòa cùng hệ thống cửa nhôm kính màu đen hiện đại. Điểm nhấn của tầng 2 và tầng 3 là các đường phào chỉ chạy dọc tinh tế và ban công sắt nghệ thuật uốn lượn cầu kỳ. Cổng chính được thiết kế vững chãi bằng sắt sơn tĩnh điện đen với họa tiết đồng tâm ở giữa, hai bên là cột trụ vuông vức ốp đá màu vàng kem ở chân, tạo cảm giác bề thế và an toàn cho công trình.

Tầng trệt được thiết kế lùi vào trong để tạo khoảng sân nhỏ, phần tường bao phía ngoài sử dụng các cột trụ trắng đồng bộ với kiến trúc nhà. Các chi tiết đèn tường trang trí cổ điển được lắp đặt đối xứng dọc các tầng, tạo nên một không gian sống sang trọng ngay cả vào ban ngày.

Với góc nhìn từ trên xuống, toàn cảnh cấu trúc và vị trí của ngôi nhà. Khoảng sân trước được lát gạch sạch sẽ, đủ diện tích để xe và tạo độ thoáng cho mặt tiền.
BỐ TRÍ KHÔNG GIAN NỘI THẤT

1. Mặt bằng Tầng 1
Đây là không gian sinh hoạt chung và khu vực tiện ích ngoại thất:
-
Sân trước & Hiên: Khu vực để xe ô tô dẫn vào hiên trước có tủ giày.
-
Phòng khách: Được bố trí sofa chữ I lớn, bàn trà và kệ tivi sát tường.
-
Khu vực thang & vệ sinh: Cầu thang nằm ở giữa nhà, bên dưới hoặc cạnh đó là một nhà vệ sinh nhỏ (WC) và khoảng thông tầng.
-
Phòng học: Diện tích bố trí nhiều bàn ghế đơn, phục vụ tiện lợi cho việc dạy học
-
Phòng bếp & Ăn: Có hệ tủ bếp chữ L và bàn ăn dành cho 6 người.
-
Sân sau: Gồm khu vực sàn gia công và vườn rau cuối nhà
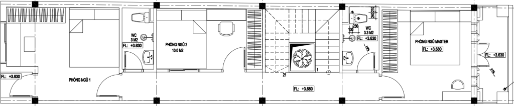
2. Mặt bằng Tầng 2
Không gian nghỉ ngơi riêng tư của gia đình:
-
Phòng ngủ Master: Nằm phía trước nhà, có ban công riêng, hệ tủ quần áo lớn và bàn trang điểm.
-
Phòng ngủ 2: Nằm giữa nhà, cạnh cầu thang, phù hợp cho con cái.
-
Phòng ngủ 1: Nằm phía sau nhà, không gian rộng rãi, có cửa sổ nhìn ra phía sau.
-
Hệ thống vệ sinh: Có 2 nhà vệ sinh được bố trí tiện lợi một phòng cạnh phòng Master và một phòng nằm giữa phòng ngủ 1 và 2.
-
Thông tầng: Khu vực giếng trời từ tầng 1 tiếp tục xuyên suốt lên trên để đối lưu không khí.
3. Mặt bằng Tầng 3 (Tầng thượng)
Khu vực tâm linh và tiện ích giặt phơi:
-
Phòng thờ + Phòng làm việc: Nằm phía trước nhà, có cửa mở ra ban công.
-
Kho: Một phòng kho nhỏ để chứa đồ dùng ít khi sử dụng.
-
Khu vực giặt: Bố trí máy giặt và bồn chậu rửa ngay cạnh hành lang cầu thang.
-
Sân phơi + Trồng rau: Chiếm diện tích lớn phía sau nhà, là không gian mở để phơi đồ và kết hợp vườn cảnh quan trên cao.
FIXHOME – SỬA NHÀ THANH HÓA
Địa chỉ : Phố 2 – P. Nguyệt Viên – Thanh Hoá
Điện thoại 24/24 : Mr Toàn: 0948.555.399
Email : suanhathanhhoa36@gmail.com
Website: www.suanhathanhhoa.com
Youtube: https://www.youtube.com/@FIXHOME-LTD
#thietkekientruc #thietkethicongkientructrongoi
#thietkekientrucnha #thietkekientrucnhadep
#donvithicongkientruc #donvithietkeuytintaithanhhoa
#thietkekientructaithanhhoa #fixhomethanhhoa
