THIẾT KẾ KIẾN TRÚC NHÀ MÁI NHẬT 2 TẦNG – ANH CƯỜNG
FixHome – Kiến trúc, Xây dựng, Nội thất tự hào là đơn vị thiết kế và thi công trọn gói kiến tạo cho gia đình Việt mái ấm hạnh phúc không chỉ đẹp mà tiện ích công năng đầy đủ hiện đại. Trong bài viết ngày hôm nay FixHome giới thiệu đến các bạn đọc cũng như quý […]
FixHome – Kiến trúc, Xây dựng, Nội thất tự hào là đơn vị thiết kế và thi công trọn gói kiến tạo cho gia đình Việt mái ấm hạnh phúc không chỉ đẹp mà tiện ích công năng đầy đủ hiện đại. Trong bài viết ngày hôm nay FixHome giới thiệu đến các bạn đọc cũng như quý khách hàng mẫu nhà phố 2 tầng hiện đại tại Thanh Hóa.

Căn nhà sử dụng hệ mái Nhật dốc màu xám đậm, có chức năng tản nhiệt tốt, tạo sự sang trọng và bề thế cho tổng thể.

Màu trắng được sử dụng rộng rãi cho các mảng tường lớn và gờ chỉ, kết hợp với màu nâu cà phê làm màu nhấn ở các dải ngang tầng 1 và tầng 2, tạo sự ấm áp và nổi bật.



Tổng thể không gian căn nhà nhìn từ trên xuống.
BỐ TRÍ CÔNG NĂNG
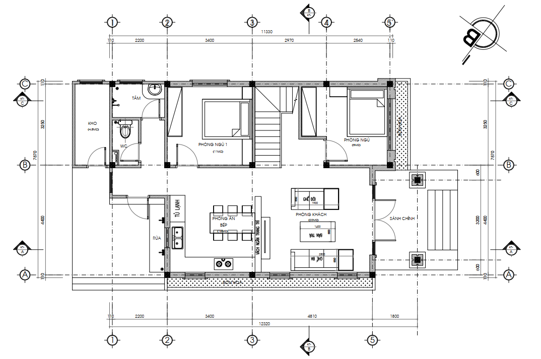
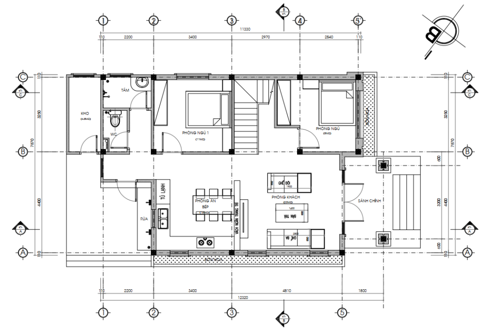
Mặt bằng công năng tầng 1
Mặt bằng Tầng 1 được tổ chức xoay quanh không gian chung và tiện ích.
Từ Sảnh Chính ở mặt tiền, người dùng bước vào khu vực Phòng Khách (22m2), đóng vai trò là nơi tiếp khách và sinh hoạt tập thể chính.
Phía sau liền kề là khu vực Phòng Ăn và Bếp, được bố trí liên thông để tối ưu hóa việc chuẩn bị và thưởng thức các bữa ăn gia đình.
Phòng Ngủ 1 (17m2) đặt ở cuối tầng, tạo sự thuận tiện cho người cao tuổi hoặc dùng làm phòng nghỉ/làm việc dự phòng.
Tầng này còn có WC chung phục vụ nhu cầu vệ sinh, tắm rửa cho tầng trệt, cùng với một Kho nhỏ (3m2) để chứa các vật dụng, thiết bị ít dùng, giúp căn nhà luôn gọn gàng.
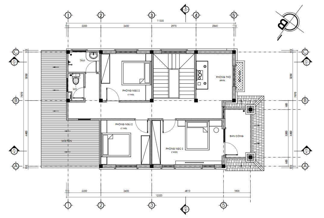
Mặt bằng công năng tầng 2

Mặt bằng Tầng 2 là khu vực riêng tư dành cho nghỉ ngơi và thờ cúng.
Tầng này bố trí 3 Phòng Ngủ có diện tích tương đương (14m2), đảm bảo không gian cá nhân cho các thành viên. Một trong các phòng ngủ có lối ra Ban Công phía trước, phục vụ việc thư giãn và tạo sự thông thoáng.
Phòng Thờ (5m2) được đặt ở vị trí trang nghiêm.
Khu vực WC chung trên tầng này đáp ứng nhu cầu vệ sinh cho ba phòng ngủ. Phía sau có thêm một phần Mái Tôn lớn, có vai trò làm khu vực phơi đồ kín đáo hoặc tạo bóng mát cho tầng dưới.
Tổng thể mặt bằng này cung cấp tổng cộng 4 phòng ngủ, mang lại sự tiện nghi và linh hoạt cao.
Với những hình ảnh thực tế thiết kế Kiến trúc nhà phố tại Hoằng Khánh – Thanh Hóa, chắc hẳn bạn đã có thêm niềm tin về đường nét sản phẩm tinh xảo tại FixHome – Kiến trúc, Xây dựng, Nội thất. Bên cạnh đảm bảo về chất lượng và thẩm mỹ, gia chủ sẽ tiết kiệm 30% chi phí khi thi công nội thất và Miễn Phí thiết kế 50% khi thi công, do FixHome Thanh Hóa có xưởng sản xuất trực tiếp và quy trình làm việc khép kín.
Nếu bạn vẫn còn lăn tăn về những vấn đề hoàn thiện nội thất, hay vẫn chưa quyết định được phương án phù hợp với mình thì hãy liên hệ ngay với chúng tôi qua Hotline: 0948.555.399 để được các chuyên viên tư vấn MIỄN PHÍ ngay và giải đáp tất tần tật mọi thắc mắc của bạn nhé!
FIXHOME – SỬA NHÀ THANH HÓA
Địa chỉ : Phố 2 – P. Nguyệt Viên – Thanh Hóa
Điện thoại 24/24 : Mr Toàn: 0948.555.399
Email : suanhathanhhoa36@gmail.com
Website: www.suanhathanhhoa.com
Youtube: https://www.youtube.com/@FIXHOME-LTD
#thietkekientruc #thietkethicongkientructrongoi
#donvithicongkientruc #donvithietkeuytintaithanhhoa
#thietkekientructaithanhhoa #fixhomethanhhoa #thietkenhao2tang #thietkenha96m2

