THIẾT KẾ KIẾN TRÚC NHÀ PHỐ 2 TẦNG – ANH TÙNG
Kiến trúc căn nhà sử dụng các hình khối vuông vắn, dứt khoát, tạo sự sang trọng. Khu vực tầng 1, với mặt tiền ốp đá, tạo sự sang trọng và phân biệt rõ ràng với tầng trên. Cửa chính lớn, rộng rãi, sử dụng kính cường lực khung đen, phù hợp cho mục đích […]

Kiến trúc căn nhà sử dụng các hình khối vuông vắn, dứt khoát, tạo sự sang trọng.

Khu vực tầng 1, với mặt tiền ốp đá, tạo sự sang trọng và phân biệt rõ ràng với tầng trên.

Cửa chính lớn, rộng rãi, sử dụng kính cường lực khung đen, phù hợp cho mục đích mở rộng không gian.

Thiết kế mái bằng với phần mái lợp nằm phía sau tường chắn mái, giúp chống nóng hiệu quả hơn cho nhà ống có chiều sâu.
BỐ TRÍ MẶT BẰNG CÔNG NĂNG
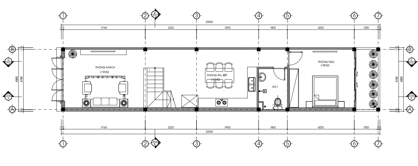
MẶT BẰNG CÔNG NĂNG TẦNG 1

-
Phía trước (Mặt tiền):
-
Phòng Khách: Khu vực tiếp khách chính, được chiếu sáng và thông gió từ cửa chính lớn.
-
-
Khu vực Giữa nhà:
-
Cầu Thang: Đặt giữa nhà, đóng vai trò ngăn cách và kết nối không gian.
-
Phòng Ăn & Bếp: Khu vực ăn uống và nấu nướng được thiết kế liên thông, tạo sự mở và rộng rãi.
-
WC Chung: Nhà vệ sinh phục vụ chung cho tầng trệt, được đặt kín đáo.
-
-
Phía sau (Cuối nhà):
-
Phòng Ngủ: Phòng ngủ kín đáo ở cuối nhà, dành cho người lớn tuổi.
-
Sân Sau: Khu vực lấy sáng, thông gió, và giặt phơi.
-
MẶT BẰNG CÔNG NĂNG TẦNG 2

-
Phía trước (Mặt tiền):
-
Phòng Ngủ Lớn: Phòng ngủ có diện tích lớn, có cửa ra ban công và tận dụng tối đa ánh sáng tự nhiên.
-
WC Riêng: Có nhà vệ sinh được bố trí bên trong phòng ngủ này.
-
-
Khu vực Giữa nhà:
-
Cầu Thang: Vị trí tương tự tầng 1.
-
Sinh hoạt Chung (SHC): Không gian đệm linh hoạt, có thể dùng làm phòng thờ, phòng đọc sách hoặc nơi thư giãn chung.
-
WC Chung: Nhà vệ sinh phục vụ cho khu vực sinh hoạt chung và phòng ngủ phía sau.
-
-
Phía sau (Cuối nhà):
-
Phòng Ngủ: Một phòng ngủ thoải mái khác, có cửa sổ/cửa đi ra sân phơi.
-
Sân Phơi: Khu vực giặt giũ và phơi đồ ở cuối hành lang.
-
Với những hình ảnh thực tế thiết kế Kiến trúc nhà phố tại Đông Thọ – Thanh Hóa, chắc hẳn bạn đã có thêm niềm tin về đường nét sản phẩm tinh xảo tại FixHome – Kiến trúc, Xây dựng, Nội thất.
Nếu bạn vẫn còn lăn tăn về những vấn đề hoàn thiện kiến trúc, hay vẫn chưa quyết định được phương án phù hợp với mình thì hãy liên hệ ngay với chúng tôi qua Hotline: 0948.555.399 để được các chuyên viên tư vấn MIỄN PHÍ ngay và giải đáp tất tần tật mọi thắc mắc của bạn nhé!
FIXHOME – SỬA NHÀ THANH HÓA
Địa chỉ : Phố 2 – P. Nguyệt Viên – Thanh Hóa
Điện thoại 24/24 : Mr Toàn: 0948.555.399
Email : suanhathanhhoa36@gmail.com
Website: www.suanhathanhhoa.com
Youtube: https://www.youtube.com/@FIXHOME-LTD
#thietkekientruc #thietkethicongkientructrongoi
#donvithicongkientruc #donvithietkeuytintaithanhhoa
#thietkekientructaithanhhoa #fixhomethanhhoa #thicongtrongoinhao2tang #thietkenhapho80m2 #thietkekientrucnhapho2tang #thicongtrongoinhapho
