TỔNG QUAN KIẾN TRÚC

Mẫu nhà mái Nhật màu xám ghi với đỉnh mái nhọn được trang trí kim thu sét tinh tế, phần hiên chính được nâng đỡ bởi 2 cột trụ vuông trắng với chân cột ốp đá vân vàng sang trọng.

Mảng tường phía trước ngôi nhà được ốp thẻ gạch nâu đậm, tạo độ tương phản mạnh mẽ, lớp sơn tường trắng sứ làm chủ đạo.

Cấu trúc mái Nhật được thiết kế theo dạng mái đa tầng, có độ dốc vừa phải, giúp thoát nước tốt và chống nóng hiệu quả. Khoảng không gian mở phía trước rộng rãi, đảm bảo sự thông thoáng tuyệt đối cho toàn bộ kiến trúc.

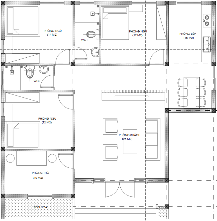
MẶT BẰNG KIẾN TRÚC TẦNG 1

1. Khu vực sinh hoạt chung (Trung tâm)

  • Phòng khách: Đây là diện tích lớn nhất trong nhà, sử dụng bộ sofa chữ L kết hợp cùng hai ghế đơn hiện đại. Không gian này mở trực tiếp ra sảnh chính và liên thông với bàn ăn.

  • Phòng bếp: Được đặt ở góc phải phía trên, thiết kế theo hình chữ L giúp tối ưu hóa diện tích nấu nướng. Ngay cạnh bếp là khu vực bàn ăn dành cho 6 người.

2. Hệ thống phòng ngủ & Vệ sinh

  • Phòng ngủ 1: Nằm ở góc trái phía trên, có cửa sổ lớn lấy sáng.

  • Phòng ngủ 2: Nằm giữa phòng ngủ 1 và phòng bếp.

  • Phòng ngủ 3: Nằm ở phía dưới bên trái, gần khu vực phòng thờ.

  • Hệ thống WC: Có 2 nhà vệ sinh. WC1 nằm kẹp giữa các phòng ngủ phía trên, trong khi WC2 nằm biệt lập hơn ở phía bên trái để thuận tiện cho khách và thành viên ở phòng ngủ 3.

3. Khu vực tâm linh & Cảnh quan

  • Phòng thờ: Được bố trí trang trọng ở góc dưới bên trái, có hướng nhìn ra khu vực bồn hoa cây xanh phía trước, tạo sự tĩnh lặng và thông thoáng.

  • Khoảng xanh: Phía ngoài phòng thờ có một dãy cây xanh trang trí, giúp điều hòa không khí và tăng thẩm mỹ cho mặt tiền.

Với những hình ảnh thực tế thiết kế Kiến trúc nhà phố tại Hoằng Đức – Thanh Hóa, chắc hẳn bạn đã có thêm niềm tin về đường nét sản phẩm tinh xảo tại FixHome – Kiến trúc, Xây dựng, Nội thất

Nếu bạn vẫn còn lăn tăn về những vấn đề hoàn thiện kiến trúc, hay vẫn chưa quyết định được phương án phù hợp với mình thì hãy liên hệ ngay với chúng tôi qua Hotline: 0948.555.399 để được các chuyên viên tư vấn MIỄN PHÍ ngay và giải đáp tất tần tật mọi thắc mắc của bạn nhé!

FIXHOME – SỬA NHÀ THANH HÓA

Địa chỉ : Phố 2 – P. Nguyệt Viên – Thanh Hóa

Điện thoại 24/24 : Mr Toàn: 0948.555.399

Email : suanhathanhhoa36@gmail.com

Website: www.suanhathanhhoa.com

Youtube: https://www.youtube.com/@FIXHOME-LTD

#thietkekientruc #thietkethicongkientructrongoi

#donvithicongkientruc #donvithietkeuytintaithanhhoa

#thietkekientructaithanhhoa #fixhomethanhhoa #thicongtrongoinhamainhat #nhhamainhatdeptaithanhhoa #nhadep #nhamainhat1tang