THIẾT KẾ KIẾN TRÚC NHÀ HIỆN ĐẠI 3 TẦNG – ANH NGỌC
Ngôi nhà được thiết kế theo kiểu kiến trúc hiện đại với các khối hình học rõ ràng Điểm nhấn với những mảng tường ốp gạch màu xám đậm tạo sự vững chãi, tương phản với khối nhà bên trái màu trắng. Có một ban công nhỏ ở tầng 2 với lan can trắng có […]

Ngôi nhà được thiết kế theo kiểu kiến trúc hiện đại với các khối hình học rõ ràng

Điểm nhấn với những mảng tường ốp gạch màu xám đậm tạo sự vững chãi, tương phản với khối nhà bên trái màu trắng.

Có một ban công nhỏ ở tầng 2 với lan can trắng có thể trồng cây xanh và hoa.

Các hệ cửa kính lớn, với hệ khung màu đen, tạo sự sang trọng và tối ưu ánh sáng.
BỐ TRÍ CÔNG NĂNG
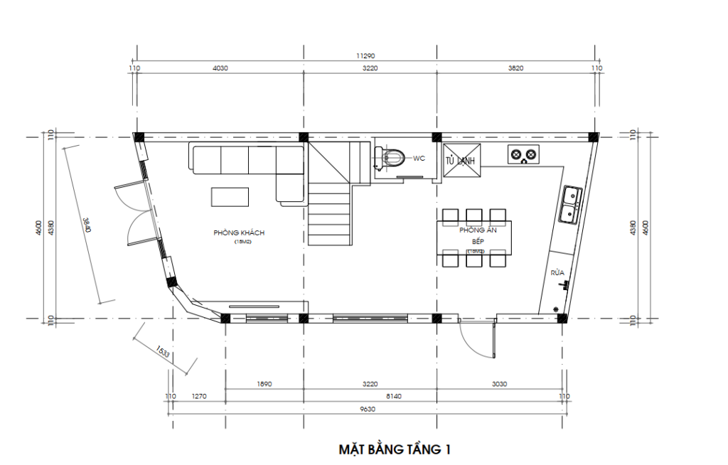
Mặt bằng công năng tầng 1

Đây là không gian sinh hoạt chung và ăn uống của gia đình:
-
Tổng thể: Mặt bằng được chia thành 3 khu vực chính: Phòng Khách, Cầu Thang + WC, và Phòng Ăn + Bếp.
-
Phòng Khách (19m²):
-
Nằm ở phía trước, bên trái của nhà, nơi có mặt tiền vát góc.
-
Diện tích rộng rãi (19m²), bố trí sofa chữ L và bàn trà.
-
Có cửa ra vào hoặc cửa sổ lớn ở mặt tiền vát, tối ưu ánh sáng tự nhiên.
-
-
Khu vực Bếp + Phòng Ăn:
-
Nằm ở phía sau.
-
Bố trí bàn ăn, tủ lạnh, bếp nấu và bồn rửa.
-
Có cửa đi ra khu vực RỬA (có thể là sân sau hoặc khu giặt, phơi) ở góc sau bên phải.
-
-
Khu vực Trung tâm:
-
Bố trí Cầu Thang đi lên tầng trên.
-
Có một WC nhỏ tiện lợi gần cầu thang.
-
Mặt bằng bố trí công năng tầng 2

Đây là tầng dành cho không gian nghỉ ngơi riêng tư:
-
Tổng thể: Bố trí 2 Phòng Ngủ độc lập, ngăn cách bởi khu vực Cầu Thang và WC.
-
Phòng Ngủ Trái (15m²):
-
Nằm ở phía trước, bên trái, nơi có mặt tiền vát góc.
-
Diện tích (15m²), bố trí giường, tủ đầu giường và cửa sổ lớn ở mặt tiền vát.
-
-
Phòng Ngủ Phải (15m²):
-
Nằm ở phía trước, bên phải.
-
Diện tích (15m²), bố trí giường và tủ đầu giường.
-
-
Khu vực Trung tâm:
-
Bố trí Cầu Thang và 1 WC chung (WC) ở giữa hai phòng ngủ, phục vụ cho cả tầng.
-
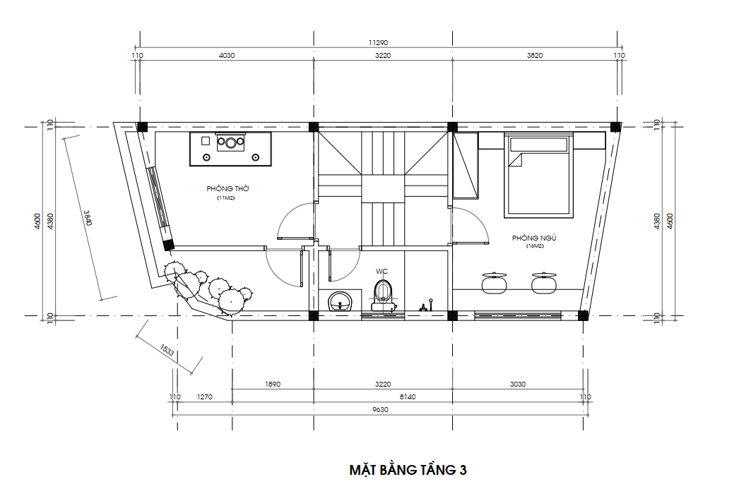
Mặt bằng bố trí công năng tầng 3

Đây là tầng Tum hoặc Sân thượng, kết hợp chức năng thờ cúng và một phòng ngủ phụ:
-
Tổng thể: Bố trí Phòng Thờ, 1 Phòng Ngủ và khu vực sân thượng/cây xanh.
-
Phòng Thờ (11m²):
-
Nằm ở phía trước, bên trái, nơi có mặt tiền vát góc.
-
Bố trí bàn thờ và có một khu vực cây xanh/ban công nhỏ ở góc vát.
-
Diện tích (11m²).
-
-
Phòng Ngủ (14m²):
-
Nằm ở phía sau, bên phải.
-
Diện tích (14m²). Có thể là phòng ngủ dự phòng hoặc phòng tập.
-
-
Khu vực Trung tâm:
-
Bố trí Cầu Thang và 1 WC chung (WC) phục vụ cả tầng.
-
FixHome – Đơn vị thi công trọn gói uy tín, chuyên nghiệp
Với kinh nghiệm nhiều năm trong lĩnh vực thiết kế và thi công trọn gói, Fixhome mang đến giải pháp xây nhà “chìa khóa trao tay” tối ưu nhất cho khách hàng. Từ ý tưởng ban đầu đến khi hoàn thiện công trình, chúng tôi cam kết đồng hành cùng bạn với quy trình rõ ràng, chi phí minh bạch và chất lượng thi công chuẩn mực.
Nếu bạn vẫn còn lăn tăn về những vấn đề hoàn thiện trọn gói, hay vẫn chưa quyết định được phương án phù hợp với mình thì hãy liên hệ ngay với chúng tôi qua Hotline: 0948.555.399 để được các chuyên viên tư vấn MIỄN PHÍ ngay và giải đáp tất tần tật mọi thắc mắc của bạn nhé!
FIXHOME – SỬA NHÀ THANH HÓA
Địa chỉ : Phố 2 – P. Nguyệt Viên – Thanh Hoá
Điện thoại 24/24 : Mr Toàn: 0948.555.399
Email : suanhathanhhoa36@gmail.com
Website: www.suanhathanhhoa.com
Youtube: https://www.youtube.com/@FIXHOME-LTD
#thietkekientruc #thietkethicongkientructrongoi
#thietkekientrucnha85m2 #thietkekientrucnha1tanggaclung
#donvithicongkientruc #donvithietkeuytintaithanhhoa
#thietkekientructaithanhhoa #fixhomethanhhoa
