THIẾT KẾ KIẾN TRÚC NHÀ TÂN CỔ ĐIỂN 3 TẦNG – ANH HOAN
TỔNG QUAN KIẾN TRÚC Ngôi nhà có thiết kế dạng ống đặc trưng, tận dụng tối đa chiều sâu trên một diện tích ngang hẹp. Kiến trúc gồm 3 tầng vô cùng hiện đại và thoáng đãng. Điểm nhấn rực rỡ với toàn bộ cổng nhôm đúc mạ vàng với hoa văn phù điêu tinh […]
TỔNG QUAN KIẾN TRÚC

Ngôi nhà có thiết kế dạng ống đặc trưng, tận dụng tối đa chiều sâu trên một diện tích ngang hẹp. Kiến trúc gồm 3 tầng vô cùng hiện đại và thoáng đãng.

Điểm nhấn rực rỡ với toàn bộ cổng nhôm đúc mạ vàng với hoa văn phù điêu tinh xảo, mang hơi hướng hoàng gia Châu Âu. Mặt tiền sử dụng các đường phào chỉ chạy dọc, các khối ban công đua ra ngoài với lan can sắt nghệ thuật vô cùng hiện đại và sang trọng.

MẶT BẰNG CÔNG NĂNG
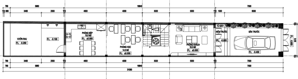
1. Tầng 1 (Mặt bằng công năng chính)
Cho thấy một không gian sống được kéo dài với chiều sâu ấn tượng, phân chia thành các khu vực chức năng rõ rệt:
-
Phía trước: Là khu vực sân và garage ô tô (Ram dốc) rộng rãi, có cao độ sàn thấp hơn nhà chính
-
Khu vực trung tâm: Bước vào nhà là Phòng khách được thiết kế mở, tiếp nối với khu vực cầu thang có tích hợp giếng trời và cây xanh ở giữa nhà để lấy sáng tự nhiên.
-
Phía sau: Là khu vực Phòng bếp và bàn ăn. Cuối nhà là một nhà vệ sinh chung và một khu vườn nhỏ (vườn rau) giúp thông thoáng toàn bộ không gian tầng trệt.
2. Tầng 2 (Khu vực nghỉ ngơi – Phòng ngủ)
Tầng này tập trung hoàn toàn vào sự riêng tư và thư giãn của gia đình:
-
Phòng ngủ Master: Nằm ở phía trước nhà, có diện tích lớn nhất, tích hợp bồn tắm nằm sang trọng ngay trong phòng và có ban công cây xanh phía trước.
-
Hệ thống phòng ngủ phụ: Phía sau cầu thang là 02 phòng ngủ nhỏ hơn. Mỗi cụm phòng đều có nhà vệ sinh riêng (WC) được bố trí hợp lý.
-
Giao thông: Hành lang chạy dọc nhà kết nối các phòng, với khoảng thông tầng tại cầu thang vẫn được duy trì để đảm bảo đối lưu không khí.
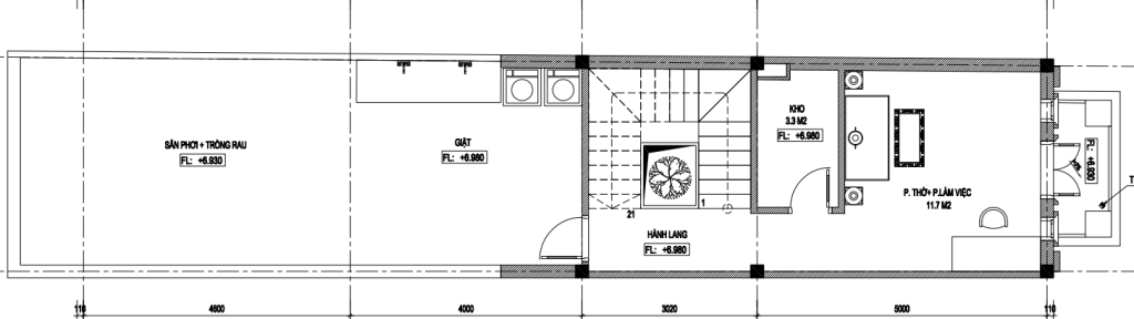
3. Tầng Thượng (Không gian tâm linh và Tiện ích)
Đây là tầng cao nhất, kết hợp giữa việc thờ cúng, làm việc và sở thích làm vườn:
-
Phía trước: Là không gian Phòng thờ kết hợp phòng làm việc, mở ra một ban công thoáng đãng.
-
Khu vực giữa: Một phòng kho nhỏ và sảnh thang rộng. Đặc biệt, có thêm khu vực giặt phơi và các phòng chức năng phụ.
-
Phía sau: Là một khoảng sân thượng cực lớn được quy hoạch thành Sân phơi và vườn trồng rau. Các bồn cây được bố trí ngăn nắp dọc hai bên vách, tạo thành một hệ sinh thái xanh trên cao cho gia đình.
FIXHOME – SỬA NHÀ THANH HÓA
Địa chỉ : Phố 2 – P. Nguyệt Viên – Thanh Hoá
Điện thoại 24/24 : Mr Toàn: 0948.555.399
Email : suanhathanhhoa36@gmail.com
Website: www.suanhathanhhoa.com
Youtube: https://www.youtube.com/@FIXHOME-LTD
#thietkekientruc #thietkethicongkientructrongoi
#thietkekientrucnha #thietkekientrucnhadep
#donvithicongkientruc #donvithietkeuytintaithanhhoa
#thietkekientructaithanhhoa #fixhomethanhhoa



