THIẾT KẾ KIẾN TRÚC NHÀ HIỆN ĐẠI 2 TẦNG – ANH BA
Góc nhìn trực diện căn nhà với phong cách hiện đại, tối giản. Tầng 1 có hệ cửa kính lớn khung đen và phần sân trước được bao bọc bởi cổng sắt nan dọc màu đen sang trọng. Điểm nhấn nổi bật là mảng tường trang trí gạch thông gió màu trắng bên trái cổng, […]

Góc nhìn trực diện căn nhà với phong cách hiện đại, tối giản. Tầng 1 có hệ cửa kính lớn khung đen và phần sân trước được bao bọc bởi cổng sắt nan dọc màu đen sang trọng. Điểm nhấn nổi bật là mảng tường trang trí gạch thông gió màu trắng bên trái cổng, giúp lấy sáng và tạo sự thông thoáng.

Tầng 2 có ban công rộng với lan can sắt, phía trên trần được ốp gỗ nhựa màu nâu ấm áp tích hợp hệ thống đèn âm trần, tạo vẻ đẹp lung linh vào buổi tối.

Ngôi nhà có thiết kế mái bằng hiện đại, khoảng sân trước đủ rộng để xe ôto, bố trí cây xanh từ tầng 2 xuống, tạo điểm nhấn tươi mát cho mặt tiền.

Trần ban công tầng 2 và trần hiên tầng 1, đều được ốp gỗ với các đường chỉ song song, tạo nên vẻ đẹp sang trọng, và vô cùng hiện đại.
BỐ TRÍ CÔNG NĂNG
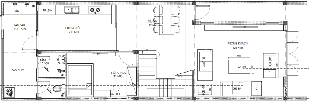
Bố trí công năng tầng 1

Tầng một được thiết kế là không gian sinh hoạt chính:
-
Phòng khách: Nằm ngay sau cửa chính, không gian rộng rãi với bộ sofa lớn (ghế ba, ghế đôi, đôn đơn) và bàn trà.
-
Khu ăn: Đặt cạnh cầu thang, tạo sự kết nối mở giữa phòng khách và bếp.
-
Phòng bếp: Bố trí hệ tủ bếp chữ L hiện đại, đầy đủ tủ lạnh và khu vực nấu nướng.
-
Phòng ngủ 1: Nằm ở phía sau, phù hợp cho người lớn tuổi.
-
Khu vệ sinh & Sân sau: Bao gồm phòng tắm, WC riêng biệt và khu vực sân sau kết hợp sân phơi rộng thoáng.
Bố trí công năng tầng 1

Mặt bằng Tầng 2
Tầng hai là không gian nghỉ ngơi riêng tư và thờ cúng tâm linh:
-
Phòng ngủ Master: Nằm ở trung tâm, có đầy đủ bàn trang điểm và tủ quần áo lớn.
-
Phòng ngủ 2 & Phòng ngủ 3: Hai phòng ngủ phụ nằm ở phía cuối nhà, phù hợp cho con cái.
-
Phòng sinh hoạt chung: Không gian mở ở sảnh thang, kết nối các phòng.
-
Phòng thờ: Được đặt trang trọng hướng ra ban công mặt tiền.
-
WC2: Nhà vệ sinh chung cho cả tầng.
-
Điểm nhấn kiến trúc: Khu vực mái kính giúp lấy sáng tự nhiên cho hành lang và cầu thang. Phía sau nhà có phần mái lợp tôn chống nóng để bảo vệ công trình
FIXHOME – SỬA NHÀ THANH HÓA
Địa chỉ : Phố 2 – P. Nguyệt Viên – Thanh Hoá
Điện thoại 24/24 : Mr Toàn: 0948.555.399
Email : suanhathanhhoa36@gmail.com
Website: www.suanhathanhhoa.com
Youtube: https://www.youtube.com/@FIXHOME-LTD
#thietkekientruc #thietkethicongkientructrongoi
#thietkekientrucnha #thietkekientrucnhadep
#donvithicongkientruc #donvithietkeuytintaithanhhoa
#thietkekientructaithanhhoa #fixhomethanhhoa
