Fixhome thiết kế bản vẽ KTTC nhà Anh Phi – Yên Định
Thông tin chung
- Chủ đầu tư: Anh Phi
- Địa điểm xây dựng: Yên định
- Diện tích nhà biệt thự:130 m2
- Kích thước đất: 18.8mx25.5m
- Kích thước nhà: 8,6mx15,0m
- Loại công trình: Thiết kế xây mới nhà biệt thự vườn
- Công năng:
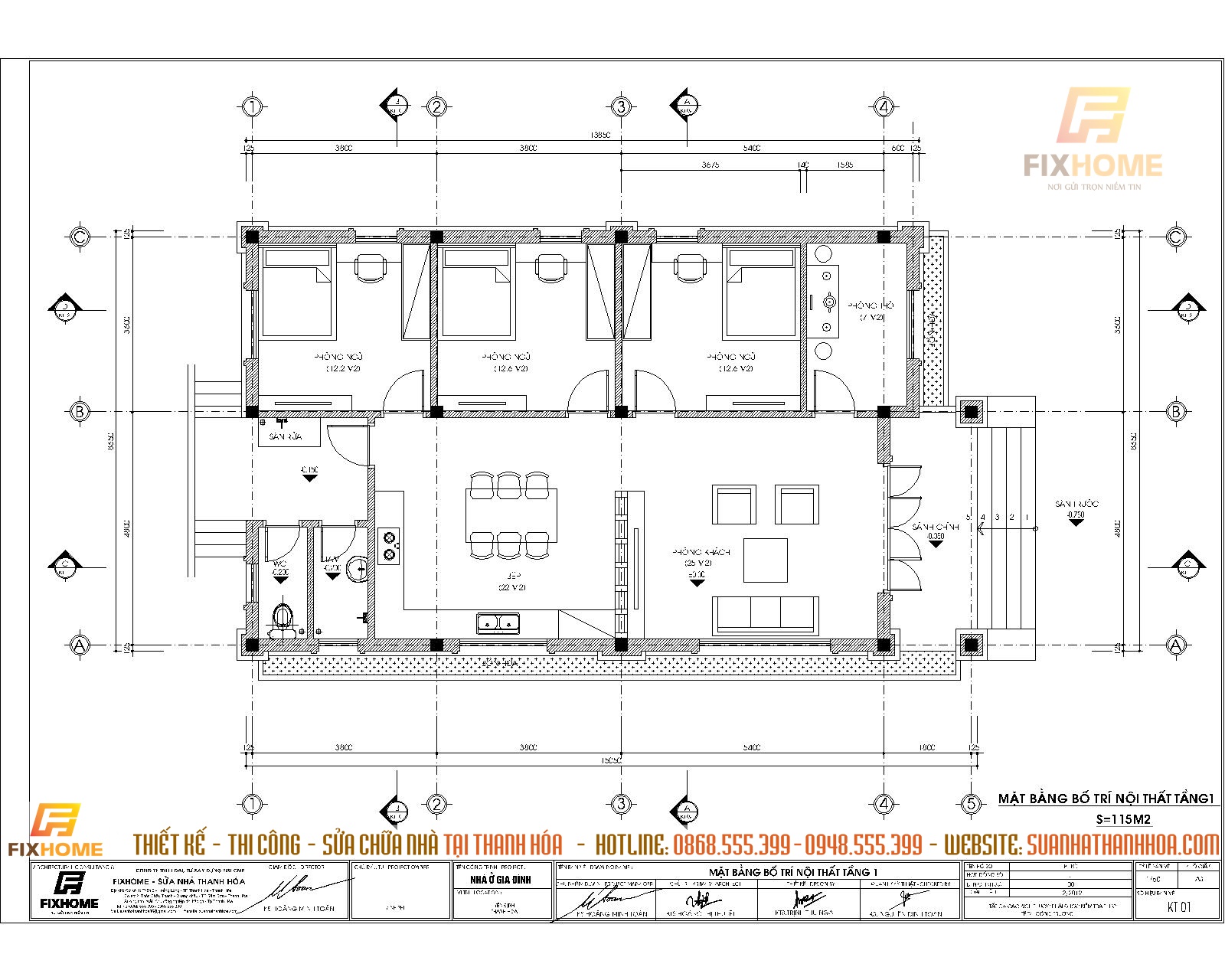
- Tầng 1: Phòng khách + phòng bếp + phòng thờ + 03 Phòng ngủ 1+ WC độc lập + Khu rửa đồ tươi sống.
-
Mô tả chi tiết:
?Thiết kế bản vẽ kiến trúc: bản vẽ mặt bằng kiến trúc, bản vẽ cửa, bản vẽ chi tiết vệ sinh, Thống kê cửa…
?Thiết kế bản vẽ 3D: Thiết kế 3d mặt chiếu đứng, mặt bên, chiếu xiên, phối cảnh chim bay, cổng ngõ tường rào.
?Thiết kế bản vẽ kết cấu: Bản vẽ mặt bằng móng, dầm, cột, sàn; Chi tiết kết cấu; Thống kê vật tư thi công…
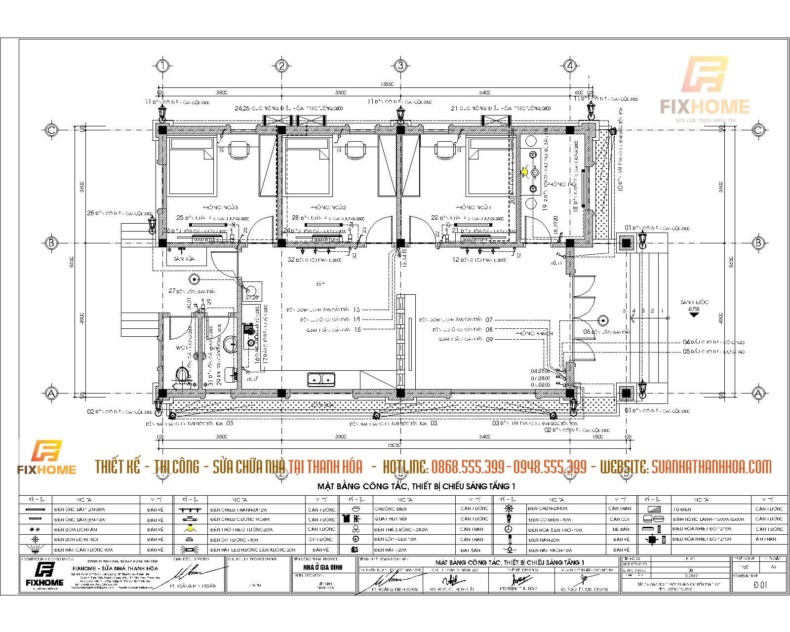
?Thiết kế bản vẽ Cấp điện, thông tin liên lạc: Mặt bằng thiết bị đèn, ổ cắm, mạng internet, truyền hình cáp; Hệ thống tủ điện, nguyên lý đấu nối, thống kê vật tư trang thiết bị điện…
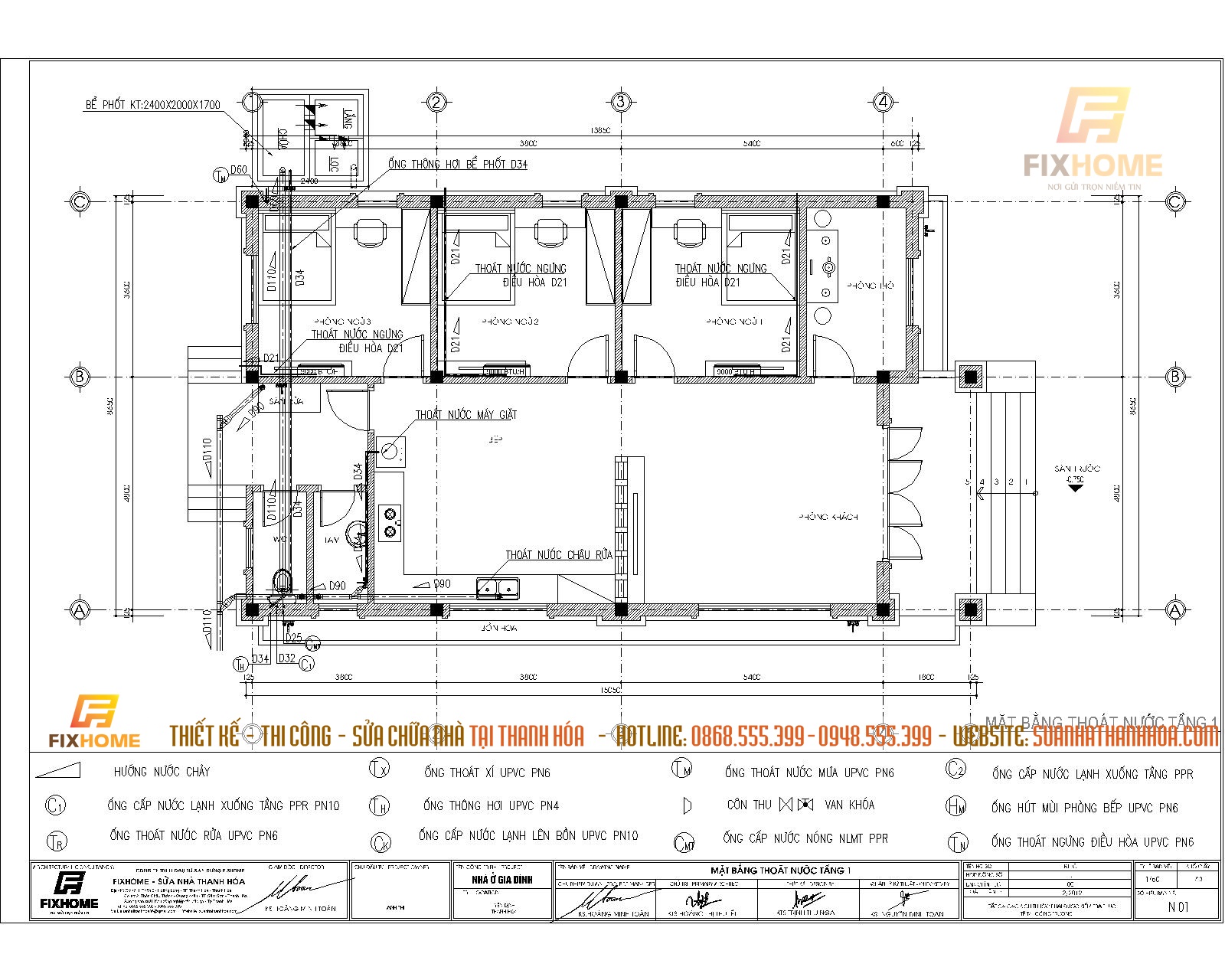
?Thiết kế bản vẽ Cấp, Thoát nước: Mặt bằng cấp thoát nước, Chi tiết bể nước, bể phốt, chi tiết lắp đặt, đấu nối, thống kê trang thiết bị nước…
? Tư vấn thiết kế, thi công nội thất trọn gói sau oàn thiện thi công phần thô.
Trên đây là Hồ sơ thiết kế KTTC nhà Anh Phi – Yên Định đơn vị đã hoàn tất. Qúy khách phần nào đã hình dung ra ngôi nhà mơ ước của mình rồi chứ. Hãy nhấc máy và gọi cho chúng tôi để được tư vấn ngay nhé.
HÃY ĐỂ FIXHOME PHỤC VỤ QUÝ KHÁCH
??? “FIXHOME – NƠI GỬI TRỌN NIỀM TIN” ???
————-
⚡️ Cập nhập những công công trình sửa nhà của Fixhome tại:
http://www.suanhathanhhoa.com/featured_item_category/du-an/
⚡️ Thiết kế, thi công nội thất chung cư Luis aparment của Fixhome tại:
http://www.suanhathanhhoa.com/…/thiet-ke-thi-cong-noi-that…/
⚡️ Thiết kế, thi công tủ bếp Vinhome Starcity của Fixhome tại:
http://www.suanhathanhhoa.com/…/fixhome-thi-cong-tu-bep-co…/
⚡️ Thiết kế, thi công sửa chữa nhà Thọ xuân tại:
http://www.suanhathanhhoa.com/…/fixhome-thiet-ke-thi-cong-…/
⚡️ Thiết kế nội thất nhà Anh Mậu Quảng Bình tại:
http://www.suanhathanhhoa.com/…/fixhome-thiet-ke-noi-that-…/
FIXHOME – SỬA NHÀ THANH HOÁ
Địa chỉ : Trụ Sở 1: Thôn 2 – Hoằng Long – Tp Thanh Hoá – Thanh Hoá
Trụ Sở 2: Thôn châu Thành – Quảng Châu – Tp Sầm sơn – Thanh Hoá
Điện thoại 24/24 : Mr Toàn: 0948.555.399-0868.555-399
Email : suanhathanhhoa36@gmail.com
Website: www.suanhathanhhoa.com













