Thiết kế thi công nội thất chung cư Louis Apartment
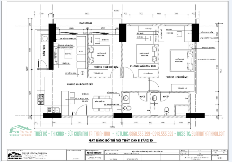
Thông tin chung Chủ đầu tư: Anh Tuấn, Chị Hiền Địa điểm xây dựng: Căn E tầng 10 Chung cư Louis Apartment Diện tích căn hộ: 90 m2 Loại công trình: Thiết kế cải tạo, nội thất Công năng: Phòng khách + Bếp + phòng ăn + Phòng ngủ con gái + Phòng ngủ con trai + Phòng […]
Thiết kế thi công nội thất chung cư Louis Apartment
Thông tin chung
- Chủ đầu tư: Anh Tuấn, Chị Hiền
- Địa điểm xây dựng: Căn E tầng 10 Chung cư Louis Apartment
- Diện tích căn hộ: 90 m2
- Loại công trình: Thiết kế cải tạo, nội thất
- Công năng:
- Phòng khách + Bếp + phòng ăn + Phòng ngủ con gái + Phòng ngủ con trai + Phòng ngủ bố mẹ + WC1 + WC2
-
Mô tả chi tiết:
-Thiết kế bản vẽ nội thất: bản vẽ bố trí mặt bằng nội thất, công năng đồ dùng trong nhà, Lên thiết kế 3D các phòng chức năng…
-Thiết kế bản vẽ Cấp điện, thông tin liên lạc: Thiết kế bố trí lại vị trí điện đèn chờ đúng theo vị trí thiết kế nội thất
-Lựa chọn chủng loại vật tư, vật liệu: Lựa chọn màu sắc, chủng loại gỗ, thiết bị đèn, thiết bị vệ sinh, thiết bị điện tủ bếp và các thiết bị khác…
Qúy khách có thể tham khảo Thiết kế và thi công nhà Anh Tuấn, Chị Hiền mà đơn vị đã hoàn thiện dưới đây:
Trên đây là Hồ sơ thiết kế thi công nội thất chung cư đơn vị đã hoàn tất. Qúy khách phần nào đã hình dung ra không gian mơ ước của mình rồi chứ. Hãy nhấc máy và gọi cho chúng tôi để được tư vấn ngay nhé.
FIXHOME – SỬA NHÀ THANH HOÁ
Địa chỉ : Trụ Sở 1: Thôn 2 – Hoằng Long – Tp Thanh Hoá – Thanh Hoá
Trụ Sở 2: Thôn châu Thành – Quảng Châu – Tp Sầm sơn – Thanh Hoá
Điện thoại 24/24 : Mr Toàn: 0948.555.399-0868.555-399
Email : suanhathanhhoa36@gmail.com
Website: www.suanhathanhhoa.com


















