FIXHOME THIẾT KẾ NỘI THẤT NHÀ ANH MẬU – QUẢNG BÌNH
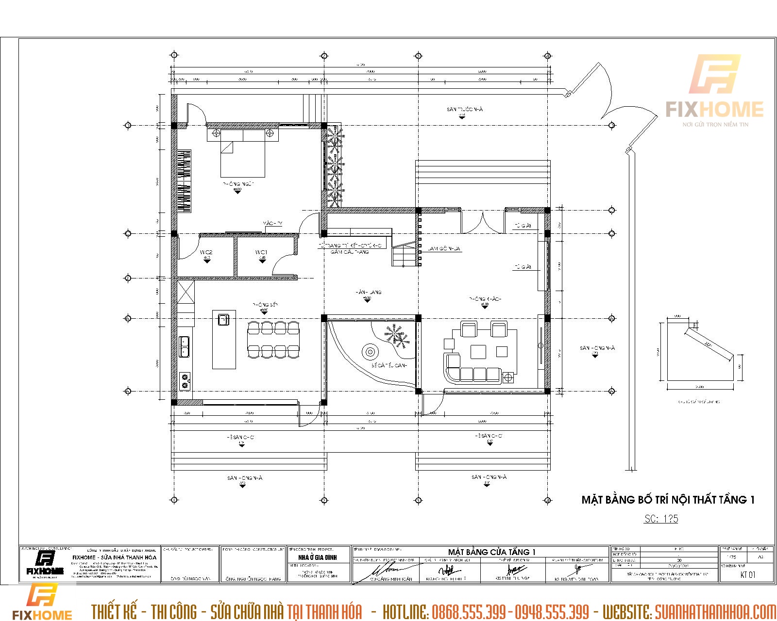
Thông tin chung Chủ đầu tư: Anh Mậu Địa điểm xây dựng: Tỉnh Quảng Bình Diện tích nhà biệt thự: 336m2 Loại công trình: Thiết kế nội thất Công năng: Tầng 1: Phòng khách + Bếp + phòng ăn + Phòng ngủ 1+ WC1 + WC2 Tầng 2: Phòng ngủ 3 + Phòng ngủ 4 + WC3+ WC4 […]
FIXHOME THIẾT KẾ NỘI THẤT NHÀ ANH MẬU – QUẢNG BÌNH
Thông tin chung
- Chủ đầu tư: Anh Mậu
- Địa điểm xây dựng: Tỉnh Quảng Bình
- Diện tích nhà biệt thự: 336m2
- Loại công trình: Thiết kế nội thất
- Công năng:
-
Tầng 1: Phòng khách + Bếp + phòng ăn + Phòng ngủ 1+ WC1 + WC2
-
Tầng 2: Phòng ngủ 3 + Phòng ngủ 4 + WC3+ WC4 + Phòng thờ + Phòng karaoke + Phòng gym
-
Mô tả chi tiết:
-
?Thiết kế nội thất phong cách hiện đại sử dụng gam màu trầm, nội thất chủ yếu sử dụng bằng chất liệu gỗ công nghiệp MDF An Cường phủ Melamin dày 18mm, Cánh tủ bếp sử dụng phủ Acrylic không đường line, thùng tủ sử dụng picomat chống chịu nước 100%.
?Hệ thống đồ nội thất thiết kế đơn giản, tinh gọn không cầu kỳ, màu sắc trang nhã càng làm không gian thêm sang trọng và hiện đại.
? Sử dụng hệ thống rèm 2 lớp kết hợp vách kính nhôm hệ tạo không gian thông thoáng, hòa nhập không gian sử dụng với không gian thiên nhiên Bên Ngoài.
? Không gian phòng ngủ sử dụng sàn gỗ nhựa vân gỗ dày 5mm mang cảm giác ấm cúng, sang trọng, sử dụng ngay cả tầng trệt một cách bền bỉ qua thời gian.
-
-
Trên đây là Hồ sơ thiết kế nội thất Anh Mậu – Quảng Bình đơn vị đã hoàn tất. Qúy khách phần nào đã hình dung ra ngôi nhà mơ ước của mình rồi chứ. Hãy nhấc máy và gọi cho chúng tôi để được tư vấn ngay nhé.
HÃY ĐỂ FIXHOME PHỤC VỤ QUÝ KHÁCH
??? “FIXHOME – NƠI GỬI TRỌN NIỀM TIN” ???————-
⚡️ Cập nhập những công công trình sửa nhà của Fixhome tại:
http://www.suanhathanhhoa.com/featured_item_category/du-an/
⚡️ Thiết kế, thi công nội thất chung cư Luis aparment của Fixhome tại:
http://www.suanhathanhhoa.com/…/thiet-ke-thi-cong-noi-that…/
⚡️ Thiết kế, thi công tủ bếp Vinhome Starcity của Fixhome tại:
http://www.suanhathanhhoa.com/…/fixhome-thi-cong-tu-bep-co…/
⚡️ Thiết kế, thi công sửa chữa nhà Thọ xuân tại:
http://www.suanhathanhhoa.com/…/fixhome-thiet-ke-thi-cong-…/FIXHOME – SỬA NHÀ THANH HOÁ
Địa chỉ : Trụ Sở 1: Thôn 2 – Hoằng Long – Tp Thanh Hoá – Thanh Hoá
Trụ Sở 2: Thôn châu Thành – Quảng Châu – Tp Sầm sơn – Thanh Hoá
Điện thoại 24/24 : Mr Toàn: 0948.555.399-0868.555-399
Email : suanhathanhhoa36@gmail.com
Website: www.suanhathanhhoa.com
-













