FIXHOME THI CÔNG NỘI THẤT CHUNG CƯ XUÂN MAI – THANH HÓA
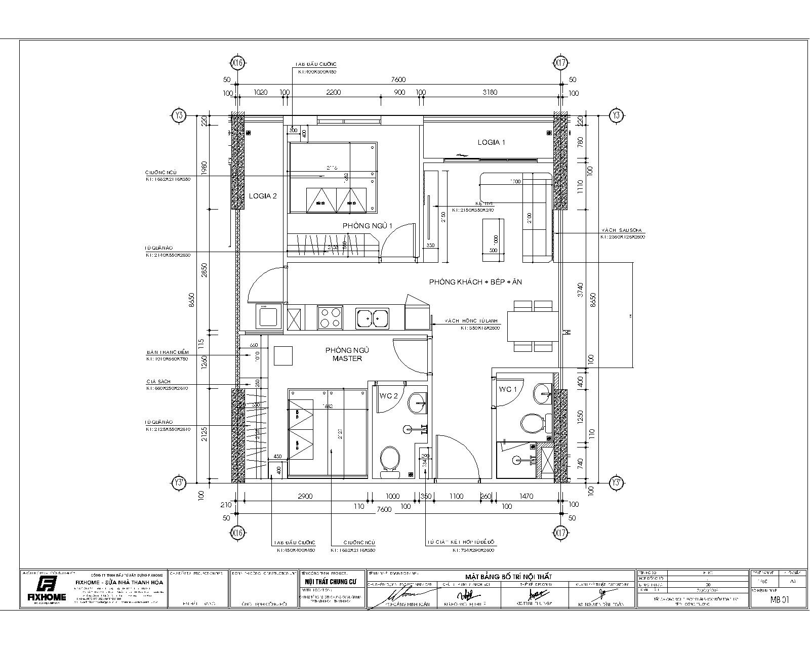
Thông tin chung Chủ đầu tư: Em trang Địa điểm xây dựng: Chung cư xuân mai tầng 12 – CT1 Diện tích nhà biệt thự: 62 m2 Loại công trình: Thiết kế nội thất Công năng: Phòng khách + phòng bếp kết hợp ăn uống + + 02 Phòng ngủ+ 02 WC + Khu giặt kết hợp phơi đồ […]
FIXHOME THI CÔNG NỘI THẤT CHUNG CƯ XUÂN MAI – THANH HÓA
Thông tin chung
- Chủ đầu tư: Em trang
- Địa điểm xây dựng: Chung cư xuân mai tầng 12 – CT1
- Diện tích nhà biệt thự: 62 m2
- Loại công trình: Thiết kế nội thất
- Công năng:
-
Phòng khách + phòng bếp kết hợp ăn uống + + 02 Phòng ngủ+ 02 WC + Khu giặt kết hợp phơi đồ
-
Mô tả chi tiết:
-
?Thiết kế nội thất phong cách hiện đại, Nội thất sử dụng gỗ công nghiệp MDF Chống ẩm An Cường phủ Melamin kèm phụ kiện bản lề giảm chấn và phụ kiện Eurogold chính hiệu…Đảm bảo chất lượng, độ thẩm mỹ, giá thành phù hợp cho công trình.
?Hệ thống đồ nội thất thiết kế đơn giản, tinh gọn không cầu kỳ, màu sắc trang nhã càng làm không gian thêm sang trọng và hiện đại.
? Sử dụng hệ thống rèm 2 lớp kết hợp vách kính nhôm hệ tạo không gian thông thoáng, hòa nhập không gian sử dụng với không gian thiên nhiên Bên Ngoài.
? Không gian phòng ngủ sử dụng sàn gỗ công nghiệp vân dày 12mm mang cảm giác ấm cúng, sang trọng.
Trên đây là công trình nội thất chung cư Xuân mai đơn vj đã thi công hoàn tất. Qúy khách phần nào đã hình dung ra không gian căn hộ mơ ước của mình rồi chứ. Hãy nhấc máy và gọi cho chúng tôi để được tư vấn ngay nhé.
HÃY ĐỂ FIXHOME PHỤC VỤ QUÝ KHÁCH
??? “FIXHOME – NƠI GỬI TRỌN NIỀM TIN” ???
————-
⚡️ Cập nhập những công công trình sửa nhà của Fixhome tại:
http://www.suanhathanhhoa.com/featured_item_category/du-an/
⚡️ Thiết kế, thi công nội thất chung cư Luis aparment của Fixhome tại:
http://www.suanhathanhhoa.com/featured_item/thiet-ke-thi-cong-noi-that-chung-cu-louis-apartment/
⚡️ Thiết kế, thi công tủ bếp Vinhome Starcity của Fixhome tại:
http://www.suanhathanhhoa.com/featured_item/fixhome-thi-cong-tu-bep-cong-nghiep-chi-thu-vinhomes-starcity-thanh-hoa/
⚡️ Thiết kế, thi công sửa chữa nhà Thọ xuân tại:
http://www.suanhathanhhoa.com/featured_item/fixhome-thiet-ke-thi-cong-sua-nha-anh-trung-tho-xuan/
⚡️ Thiết kế nội thất nhà Anh Mậu Quảng Bình tại:
http://www.suanhathanhhoa.com/featured_item/fixhome-thiet-ke-noi-that-nha-anh-mau-quang-binh/
⚡️ Thiết kế bản vẽ KTTC nhà anh Phi – Yên định tại:
http://www.suanhathanhhoa.com/featured_item/fixhome-thiet-ke-ban-ve-kttc-nha-anh-phi-yen-dinh/
FIXHOME – SỬA NHÀ THANH HOÁ
Địa chỉ : Trụ Sở 1: Thôn 2 – Hoằng Long – Tp Thanh Hoá – Thanh Hoá
Trụ Sở 2: Thôn châu Thành – Quảng Châu – Tp Sầm sơn – Thanh Hoá
Điện thoại 24/24 : Mr Toàn: 0948.555.399-0868.555-399
Email : suanhathanhhoa36@gmail.com
Website: www.suanhathanhhoa.com


















