THIẾT KẾ KIẾN TRÚC NHÀ MÁI NHẬT 2 TẦNG – EM MINH
Kiến trúc không gian nhà mái Nhật 2 tầng hiện lên vẻ đẹp sang trọng và kiên cố với hàng rào trắng, kết hợp các ô thoáng bằng sắt nghệ thuật mạ vàng tinh xảo. Cổng chính của ngôi nhà là loại cửa sắt 4 cánh với họa tiết hoa văn cổ điển đồng bộ, […]

Kiến trúc không gian nhà mái Nhật 2 tầng hiện lên vẻ đẹp sang trọng và kiên cố với hàng rào trắng, kết hợp các ô thoáng bằng sắt nghệ thuật mạ vàng tinh xảo.

Cổng chính của ngôi nhà là loại cửa sắt 4 cánh với họa tiết hoa văn cổ điển đồng bộ, tạo điểm nhấn sang trọng.

Sự kết hợp giữa tone màu trắng chủ đạo của sơn tường và màu xanh ghi của hệ mái Nhật tạo nên 1 tổng thể thanh lịch.

Ngôi nhà có khối hình vuông vắn, tận dụng tối đa diện tích nhưng vẫn có khoảng sân rộng rãi để đậu oto. Hệ mái Nhật được thiết kế giật cấp, tạo độ dốc vừa phải, giúp thoát nước tốt và tạo vẻ đẹp thanh thoát.

Tầng 2 của ngôi nhà nổi bật với ban công rộng rãi có lan can sắt mỹ thuật uốn lượn cầu kỳ. Hệ thống cửa sổ và cửa ra vào sử dụng kính cường lực khung nhôm xám đen hiện đại, giúp đón trọn ánh sáng tự nhiên vào không gian nội thất.



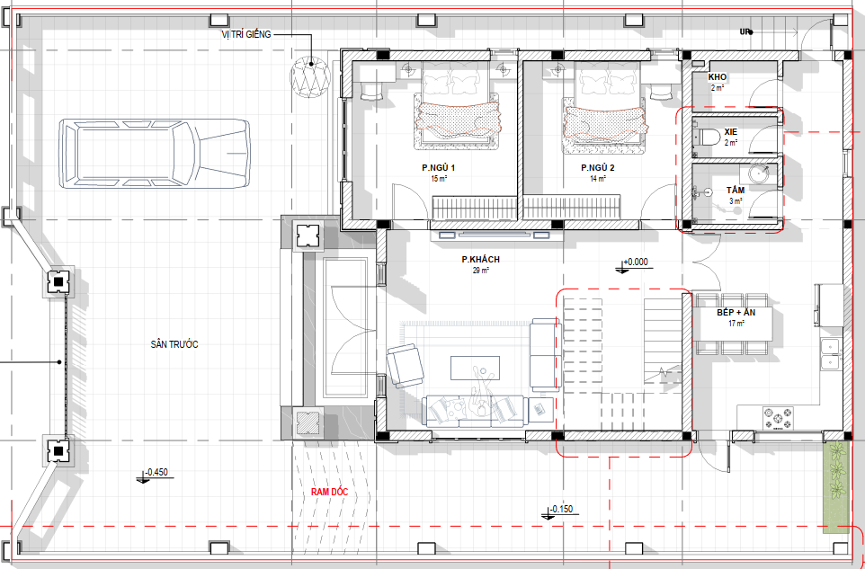
BỐ TRÍ CÔNG NĂNG
MẶT BẰNG CÔNG NĂNG TẦNG 1
-
Khu vực sân vườn: Phía trước là một khoảng sân trước rộng rãi dùng để đỗ xe ô tô, có vị trí giếng trời và lối đi ram dốc dành cho xe vào nhà. Xung quanh nhà được bố trí dải cây xanh tạo cảnh quan.
-
Không gian sinh hoạt chính: Từ cửa chính đi vào là phòng khách được bố trí bộ sofa lớn hiện đại. Ngay cạnh đó là khu vực bếp + ăn tích hợp, có hệ tủ bếp chữ L và bộ bàn ăn dành cho 6 người.
-
Phòng ngủ: Tầng này có 2 phòng ngủ là P. Ngủ 1 và P. Ngủ 2, cả hai đều có cửa sổ lớn hướng ra không gian thoáng đãng.
-
Tiện ích phụ: Khu vực phía sau bao gồm 1 phòng kho nhỏ, 1 phòng vệ sinh và 1 phòng tắm riêng biệt.
MẶT BẰNG CÔNG NĂNG TẦNG 2

-
Khu vực tâm linh và ngủ nghỉ: Tầng này bao gồm phòng thờ nằm ở vị trí trang trọng phía trước. Cạnh đó là 2 phòng ngủ tiếp theo: P. Ngủ 3 và P. Ngủ 4
-
Không gian ngoài trời: Đặc điểm nổi bật là hệ ban công và sân sau rất rộng. Khu vực ban công phía trước được trang trí nhiều cây xanh và có bộ bàn ghế nhỏ để thư giãn. Phía sau là khoảng sân sau thoáng đãng, thích hợp để làm sân chơi hoặc vườn cảnh.
-
Khu vực giặt phơi: Một khoảng diện tích lớn được dành riêng cho việc giặt phơi, kết hợp với 1 phòng tắm và 1 phòng vệ sinh để đảm bảo tiện nghi sinh hoạt.
-
Giao thông: Cầu thang bộ nằm ở vị trí trung tâm, giúp kết nối thuận tiện giữa các phòng và các tầng.
Với những hình ảnh thực tế Thiết kế kiến trúc tại Hoằng Sơn – Thanh Hóa, chắc hẳn bạn đã có thêm niềm tin về đường nét sản phẩm tinh xảo tại FixHome – Kiến trúc, Xây dựng, Nội thất. Bên cạnh đảm bảo về chất lượng và thẩm mỹ, gia chủ sẽ tiết kiệm 30% chi phí khi thi công nội thất và Miễn Phí thiết kế 50% khi thi công, do FixHome Thanh Hóa có xưởng sản xuất trực tiếp và quy trình làm việc khép kín.
Nếu bạn vẫn còn lăn tăn về những vấn đề hoàn thiện nội thất, hay vẫn chưa quyết định được phương án phù hợp với mình thì hãy liên hệ ngay với chúng tôi qua Hotline: 0948.555.399 để được các chuyên viên tư vấn MIỄN PHÍ ngay và giải đáp tất tần tật mọi thắc mắc của bạn nhé!
FIXHOME – SỬA NHÀ THANH HÓA
Địa chỉ : Phố 2 – P. Nguyệt Viên – Thanh Hoá
Điện thoại 24/24 : Mr Toàn: 0948.555.399
Email : suanhathanhhoa36@gmail.com
Website: www.suanhathanhhoa.com
Youtube: https://www.youtube.com/@FIXHOME-LTD
#thietkethicongtrongoinhadep #thicongtrongoinhamainhat2tang #nhamainha2tangdep #nhadeptaijthanhhoa #fixhomethanhhoa #donvithiconguytin #nhamainhatdep2tang #thicongtrongoinhadep

