Báo giá thi công nhà ở khung sắt tại Thanh Hóa năm 2025
Nhà khung thép tiền chế là gì?
Nhà khung thép (nhà tiền chế) là loại nhà được lắp ghép từ các cấu kiện thép sản xuất sẵn tại nhà máy và lắp dựng tại công trình theo bản vẽ kỹ thuật, đảm bảo độ chính xác cao và thi công nhanh chóng.
Nhà thép tiền chế ngày càng trở nên phổ biến, ứng dụng làm nhà xưởng, kho bãi nhờ khả năng thi công nhanh, linh hoạt và vượt nhịp lớn. Ngoài ra, loại hình này cũng thường xuyên xuất hiện tại các khu đô thị lớn, trong các công trình như siêu thị, showroom, nhà hàng và cả nhà cao tầng, mang đến giải pháp xây dựng hiện đại và tối ưu chi phí.


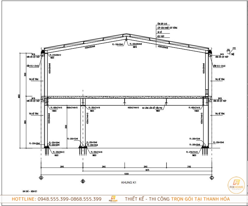
1. Thông số cơ bản của nhà khung thép tiền chế
- Khẩu độ: Chiều rộng của nhà xưởng được tính từ khoảng cách giữa 2 cột trong không gian xây dựng.
- Bước cột: Khoảng cách giữa hai cột theo chiều dọc của nhà xưởng và có độ dài từ 6m – 12m.
- Chiều cao nhà: Là chiều cao cột biên, ảnh hưởng đến độ thông thoáng và khả năng lắp đặt thiết bị bên trong.
- Độ dốc mái: Dao động từ 10 – 30%, giúp thoát nước mưa hiệu quả, tránh đọng nước gây hư hỏng mái.
- Tải trọng nền: Phụ thuộc vào mục đích sử dụng nhà xưởng, như lắp đặt máy móc, xe hàng hay phương tiện vận chuyển.
- Tải trọng mái: Bao gồm trọng lượng của mái tôn, tấm cách nhiệt, trần giả, hệ thống kỹ thuật, cầu trục, tải gió.


3. Ưu điểm của nhà khung thép tiền chế
- Linh hoạt trong bố trí không gian: Không cần cột giữa, giúp tận dụng tối đa diện tích sử dụng.
- Rút ngắn thời gian và tiết kiệm chi phí thi công: Quá trình thi công diễn ra nhanh chóng do các cấu kiện được sản xuất sẵn, giúp rút ngắn thời gian và tiết kiệm chi phí đáng kể.
- Khả năng chịu lực tốt: Các cấu kiện được sản xuất sẵn, lắp dựng nhanh, giảm thiểu thời gian chờ đợi.
- Giảm thiểu ô nhiễm môi trường: Ít phát sinh chất thải xây dựng, có thể tái sử dụng vật liệu.

4. Ứng dụng của nhà khung thép
Ứng dụng của nhà khung thép tiền chế rất đa dạng nhờ vào ưu điểm thi công nhanh, chi phí tối ưu và khả năng chịu lực cao. Dưới đây là những công trình phổ biến sử dụng loại công trình này:
- Nhà xưởng, kho bãi, khu công nghiệp
- Công trình thương mại & dịch vụ
- Nhà ở dân dụng & kiến trúc hiện đại
- Công trình công cộng & giáo dục: trường học, bệnh viện, nhà thi đấu, trung tâm hội nghị…






5. Dưới đây là dự án nhà khung thép mà FixHome Thanh Hóa đã thực hiện








6. Lựa chọn đơn vị thi công uy tín
Thiết kế kiến trúc và thiết kế nội thất cho ngôi nhà không chỉ thể hiện đầy đủ các mong muốn của chủ nhân ngôi nhà ra giấy, Thiết kế nhà còn thể hiện lối sống, quan điểm của chủ nhà. Nó liên quan đến toàn bộ giá trị thẩm mỹ của không gian nhà, thể hiện khả năng sáng tạo, tài năng, kiến thức về mỹ thuật.
Xây, sửa nhà là việc làm quan trọng. Nếu bạn là người không có nhiều kinh nghiệm và am hiểu về lĩnh vực xây dựng hoặc bạn có kinh nghiệm nhưng bạn không có thời gian và công sức thì hãy để FixHome chúng tôi giúp bạn thực hiện tốt nhất ý tưởng của bạn thanh ngôi nhà có kiến trúc đẹp và kết cấu vững vàng với chi phí là hợp lý nhất. Vì chúng tôi sẽ giúp bạn tiết kiệm được thời gian, công sức, tiền bạc lại vừa có được những mẫu nhà, những công trình đẹp và chất lượng.
Công ty TNHH Đầu tư xây dựng FixHome với uy tín lâu năm trên thị trường, nhằm mang đến cho quý khách hàng những sản phẩm chất lượng cao. Bạn cần tư vấn thi công nhà khung sắt vui lòng liên hệ chúng tôi:
- Đội ngũ tư vấn kinh nghiệm, tay nghề thợ trên 10 năm trong lĩnh vực thi công.
- Công ty rõ ràng, chế độ bảo hành tốt. Ngoài thiết kế, thi công nhà lắp ghép cho gia đình. Chúng tôi còn thi công cả các hạng mục nội thất trọn gói.
- Giá thành cực kỳ hợp lý, chính sách hổ trợ vận chuyển linh hoạt.
FIXHOME – SỬA NHÀ THANH HOÁ
Địa chỉ : Trụ Sở 1: Phố 2 – P. Long Anh – Tp Thanh Hoá – Thanh Hoá
Trụ Sở 2: Thôn châu Thành – Quảng Châu – Tp Sầm sơn – Thanh Hoá
Kho vật tư: Lô C5 Khu công nghiệp tây bắc ga – Tp Thanh Hóa – Thanh Hóa
Điện thoại 24/24 : Mr Toàn: 0948.555.399-0868.555-399
Email : suanhathanhhoa36@gmail.com
Website: www.suanhathanhhoa.com


